Endstück EI90 für Brandschutzkanal PLCD D091220
Typ PLCD E091220
|Art.Nr. 7215854
|EAN 4012196836581



Art.Nr. / Typ
Maß
B
Maß H
Farbe
grau
kl. VKE: 1 Stück
1Stück
Stück
Beschreibung
Endstück für Brandschutzkanal PYROLINE® Con D EI90, Typ PLCD D091220 bestehend aus wasser- und frostbeständigem Glasfaserleichtbeton zum Verschluss der Kanalenden.
Inklusive Senkkopfschrauben und aufgeklebten Dichtungsstreifen.
Inklusive Senkkopfschrauben und aufgeklebten Dichtungsstreifen.
Technische Daten
Abmessungen
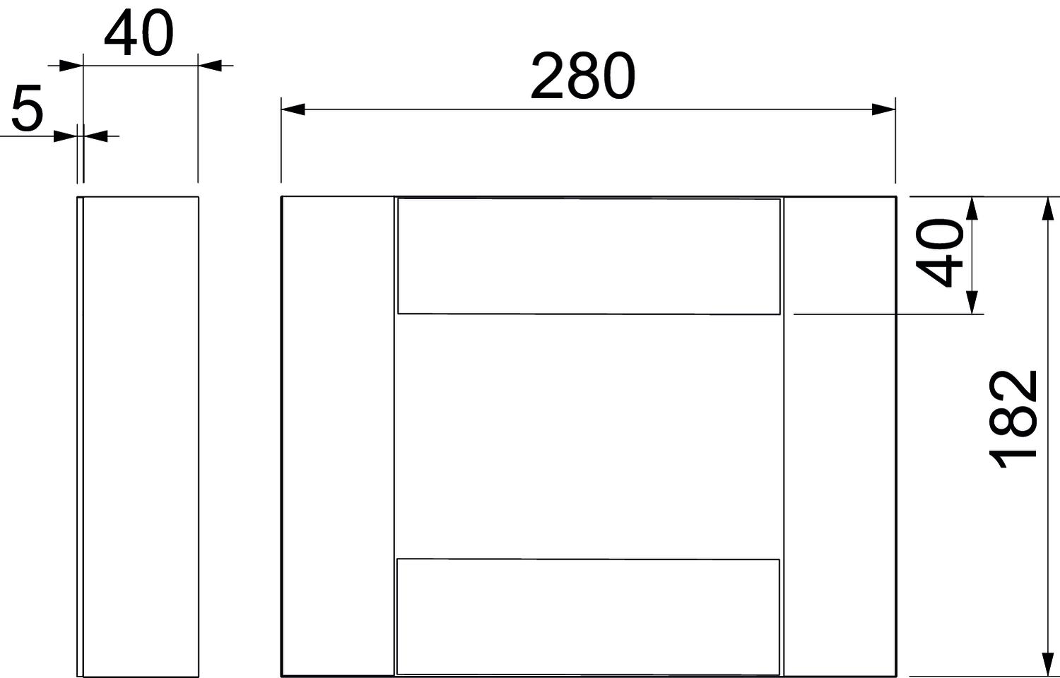
| Länge | 40 mm |
|---|---|
| Breite | 280 mm |
| Höhe | 182 mm |
| Maß L | 40 mm |
| Maß A | 40 mm |
| Maß B | 280 mm |
| Maß H | 182 mm |
Technische Daten
| Ummantelung | ohne |
|---|---|
| Werkstoff des Isoliermaterials | Glasfaser-Leichtbeton |
| Ausführung | links/rechts |
| Klassifizierung EI - Installationskanal | 90 |
| Dimension | 200x120 |
| Werkstoff | Glasfaserleichtbeton |
| Farbe | grau |
Downloads
0 ausgewählt
Datenblatt (1)
Kataloge & Broschüren (4)
Erklärungen (4)
Zertifikate (1)
Anleitungen & Hilfen (2)
Artikelbilder (2)
Ausschreibungstexte (2)
Ausführungen
Typ
Maß B
Maß H
Farbe
Art.Nr.
PLCD E090810
180
142
grau
7215850
PLCD E091220
280
182
grau
7215854
Maß
B
Maß H
PLCD E090810
Art.Nr.
7215850
Maß
B
180
Maß H
142
Farbe
grau
PLCD E091220
Art.Nr.
7215854
Maß
B
280
Maß H
182
Farbe
grau


